Royal Oak

ROYAL OAK

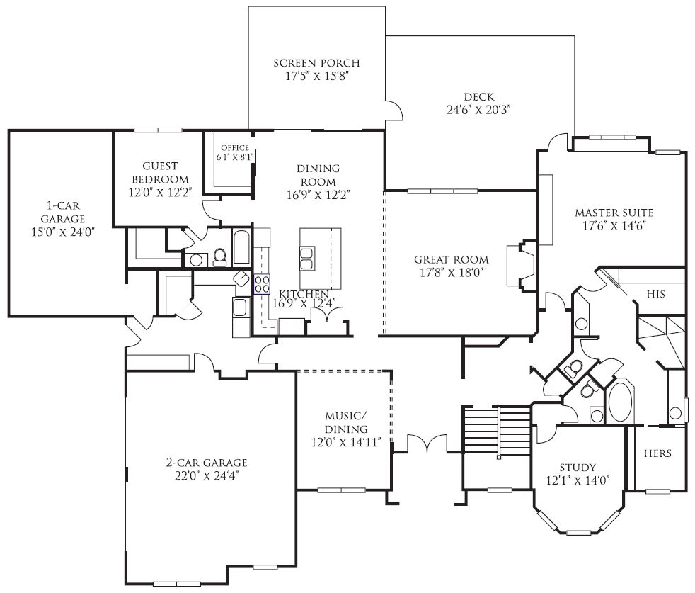
Royal Oak is a traditional ranch with a grand entryway and open kitchen/hearth room. It features floor to ceiling windows in the hearth room, a sprawling master suite, and a screned patio.

  • 3 Bedrooms
  • 3.5 Baths
  • 3,000 Square Feet
  • 1,376 Lower Level

SONY DSC

SONY DSC

SONY DSC

SONY DSC

SONY DSC

SONY DSC

SONY DSC

SONY DSC

SONY DSC

SONY DSC

SONY DSC

SONY DSC

SONY DSC

SONY DSC

SONY DSC

SONY DSC

Menu